.
Hanna. Kamińska
Broker
Zapytaj o ofertę
Zadzwoń do Agenta
Zapytaj o ofertę
Skontaktuj się z Agentem Metrohosue i umów się na prezentację
Wybierz preferowaną datę
Sprzedaż Dom Lejkowo, pow. sławieński
JYZI636
Sprzedaż
Wolnostojący
3 200 000 PLN 17 429 za m2
Lejkowo, pow. sławieński
5 pokoi
184 m²
102100 m² działka
Zapłacisz PLN/miesięcznej raty kredytu
Oprocentowanie %
O nieruchomości
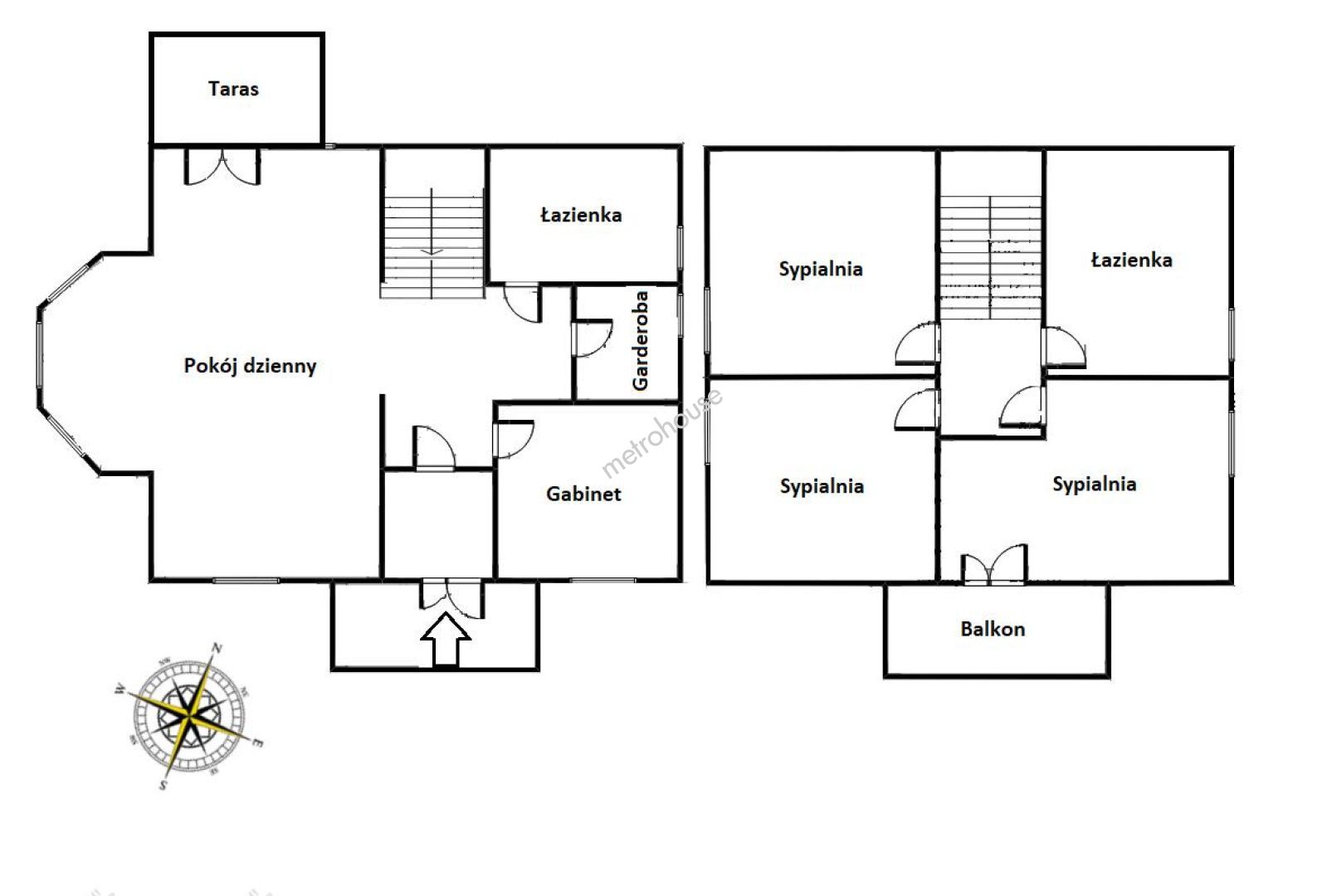
Lejkowo przepiękna posiadłość. Działka 10 h. Budynek wolno stojący z poddaszem użytkowym(163 mkw). Tylko u nas budynek wolno stojący, parterowy, podpiwniczony, posiadający poddasze użytkowe z dachem dwuspadowym.
Do domu prowadzą schody wykonane z drewna, które wyłowiono z morza. Potem mamy wiatrołap i hall, który stanowi trzon komunikacyjny całego budynku. dostępny jest z niego pokój dzienny, sypialnia, łazienka oraz pomieszczenie...
Pokaż więcej
Podstawowe informacje
Stan nieruchomości:
Nie określono
Rok budowy:
2012
Liczba pięter:
0
Stan elewacji:
Nie określono
Stan budynku wewnątrz:
Podwyższony
Stan oświetlenia:
Nie określono
Podłoga:
Nie określono
Ogrzewanie:
Na biomasę
Materiał:
Drewniana
Certyfikat energetyczny:
Nie określono
Parking:
Nie
Udogodnienia
Piękny widok
Blisko jeziora
Widok na jezioro
Domofon