.
Krzysztof Nobis
Broker
Zapytaj o ofertę
Zadzwoń do Agenta
Zapytaj o ofertę
Skontaktuj się z Agentem Metrohosue i umów się na prezentację
Wybierz preferowaną datę
Sprzedaż Dom Mokotów, Warszawa
NYGO254
Sprzedaż
Wolnostojący
10 000 000 PLN 20 619 za m2
Mokotów, Warszawa
9 pokoi
485 m²
1277 m² działka
Zapłacisz PLN/miesięcznej raty kredytu
Oprocentowanie %
O nieruchomości
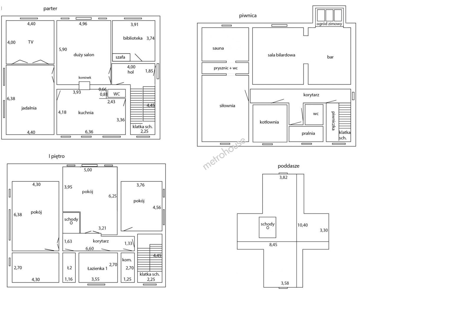
Sprzedam duży dom wolnostoojący o pow. 485 m2 na działce ok.1280 m2 na Górnym Mokotowie. Dom składa się z 4 kondygnacji:1.
Piwnica – (wysokość - 2,20 m): pokój rekreacyjny – 51 m2, pralnia- 11 m2, wc- 1,3 m2, kotłownia- 8 m2, sauna z łazienką i wc – 17 m2, pomieszczenie gospodarcze- 31 m2, schowek pod schodami;2.
Parter- (wysokość – 3,30 m) : salon – 30 m2 (z oryginalnym przedwojennym kominkiem) z wyjściem na taras- 16 m2, pokój - 28 m2,...
Pokaż więcej
Podstawowe informacje
Stan nieruchomości:
Nie określono
Rok budowy:
1925
Liczba pięter:
1
Stan elewacji:
Nie określono
Stan budynku wewnątrz:
Do wprowadzenia
Stan oświetlenia:
Nie określono
Podłoga:
Nie określono
Ogrzewanie:
Gaz miejski
Materiał:
Mieszana
Certyfikat energetyczny:
Nie określono
Parking:
Nie
Udogodnienia
Dobra komunikacja
Domofon