.
Elwira Galas
Kierownik
Zapytaj o ofertę
Zadzwoń do Agenta
Zapytaj o ofertę
Skontaktuj się z Agentem Metrohosue i umów się na prezentację
Wybierz preferowaną datę
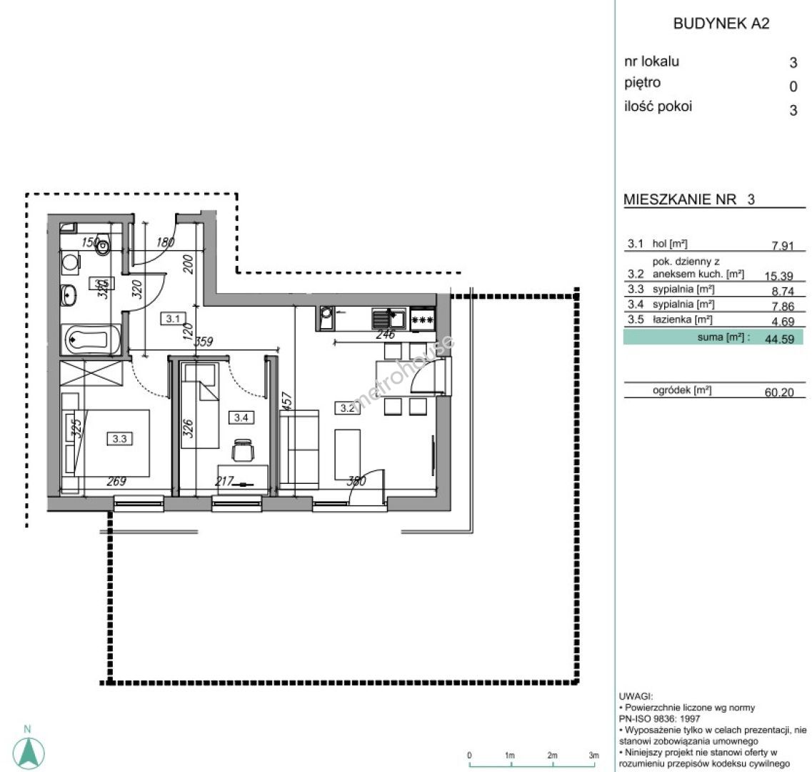
Sprzedaż Mieszkanie Zawada, pow. myślenicki
PR011573/LK/41504
Sprzedaż
Mieszkanie
Rynek pierwotny
468 195 PLN 468 195 za m2
Zawada, pow. myślenicki
3 pokoje
45 m²
1/3
Zapłacisz PLN/miesięcznej raty kredytu
Oprocentowanie %
O nieruchomości
Połączenie wyjątkowej lokalizacji i nowoczesnych rozwiązań eko budownictwa to wyróżniki kompleksu. Budynki powstały na bardzo urokliwym terenie, dzięki czemu mieszkańcy korzystają z wyjątkowego komfortu przestrzeni i udogodnień możliwych jedynie dla tego unikatowego miejsca. Zadbaliśmy o najwyższej jakości technologię budowy i najbardziej użyteczne wykorzystanie przestrzeni aby stworzyć unikatowe miejsce do zamieszkania i wypoczynku. I etap...
Pokaż więcej
Podstawowe informacje
Stan nieruchomości:
Rok budowy:
2023
Podłoga:
1
Liczba pięter:
3
Winda:
Nie
Stan elewacji:
Nie określono
Stan budynku wewnątrz:
Stan oświetlenia:
Nie określono
Parking:
Nie
Balkon:
Nie
Podłoga:
Nie określono
Strony świata:
Nie określono
Ogrzewanie:
Pompa ciepła
Certyfikat energetyczny:
Nie określono