.
Bartosz Baer
Kierownik
Zapytaj o ofertę
Zadzwoń do Agenta
Zapytaj o ofertę
Skontaktuj się z Agentem Metrohosue i umów się na prezentację
Wybierz preferowaną datę
Sprzedaż Mieszkanie Bemowo, Warszawa
PR016033/LK/32624
Sprzedaż
Mieszkanie
Rynek pierwotny
895 000 PLN 895 000 za m2
Bemowo, Warszawa
1 pokój
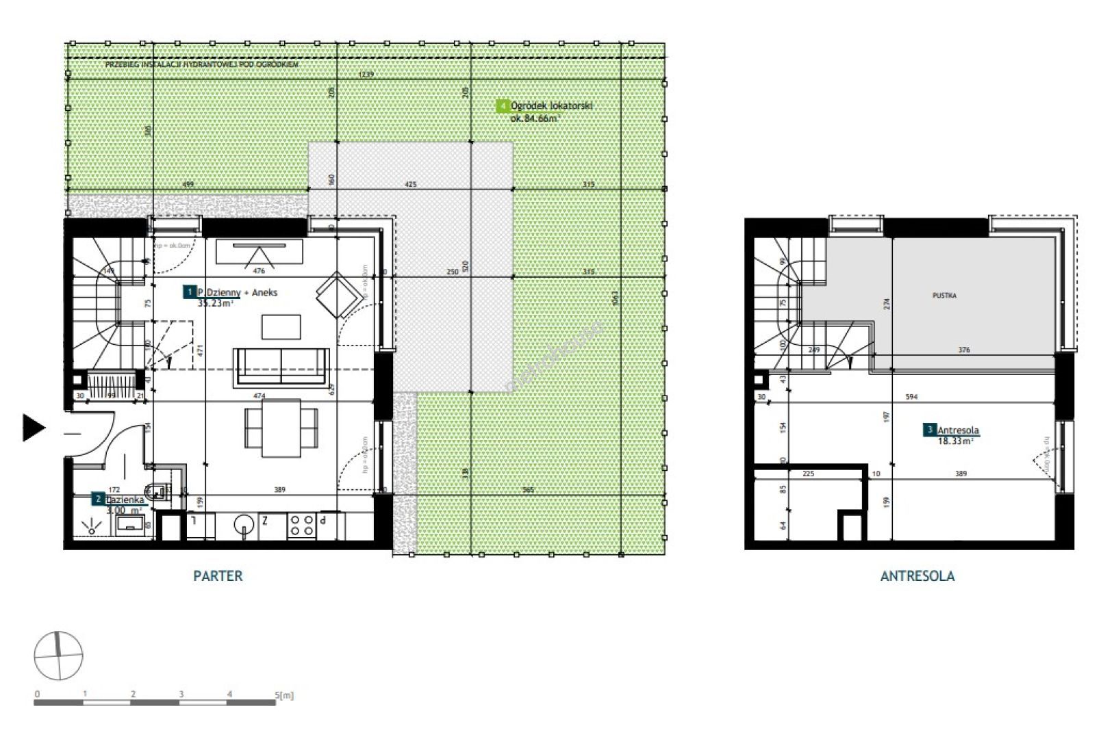
57 m²
0/3
Zapłacisz PLN/miesięcznej raty kredytu
Oprocentowanie %
O nieruchomości
Wyjątkowe osiedle na Bemowie, pełne energii i stworzone z myślą o komforcie mieszkańców. Położone w spokojnej części dzielnicy, zapewnia bliskość metra i wygodny dostęp do wszystkich miejskich atrakcji. To nowoczesna przestrzeń mieszkalna, której kameralna architektura i jasne, przestronne wnętrza tworzą idealne warunki do życia. Dwa zielone dziedzińce dają mieszkańcom możliwość relaksu i kontaktu z naturą, tuż za progiem...
Pokaż więcej
Podstawowe informacje
Stan nieruchomości:
Rok budowy:
2027
Podłoga:
0
Liczba pięter:
3
Winda:
Nie
Stan elewacji:
Nie określono
Stan budynku wewnątrz:
Stan oświetlenia:
Nie określono
Parking:
Nie
Balkon:
Nie
Podłoga:
Nie określono
Strony świata:
Nie określono
Ogrzewanie:
Miejskie
Certyfikat energetyczny:
Nie określono