.
Monika Jaworska
Agent
Zapytaj o ofertę
Zadzwoń do Agenta
Zapytaj o ofertę
Skontaktuj się z Agentem Metrohosue i umów się na prezentację
Wybierz preferowaną datę
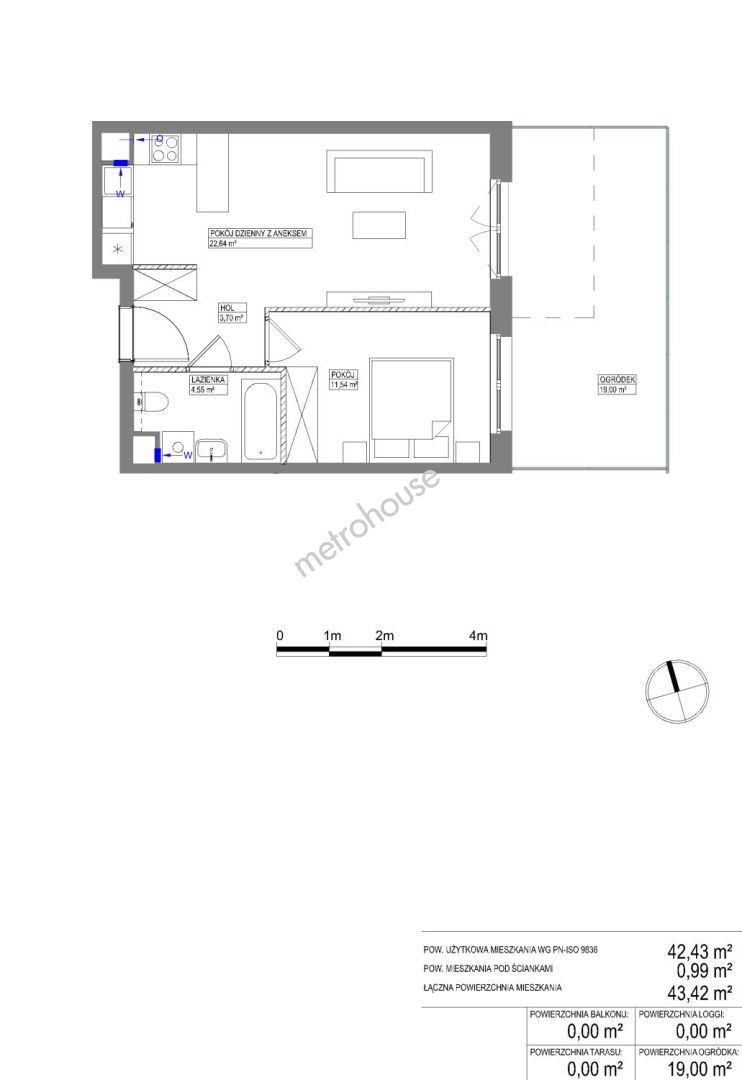
Sprzedaż Mieszkanie Bemowo, Warszawa
PR017596/LK/44473
Sprzedaż
Mieszkanie
Rynek pierwotny
757 376 PLN 757 376 za m2
Bemowo, Warszawa
2 pokoje
42 m²
0/6
Zapłacisz PLN/miesięcznej raty kredytu
Oprocentowanie %
O nieruchomości
Na warszawskim Bemowie powstanie nowoczesne osiedle z 6-piętrowymi budynkami, które zaoferują funkcjonalne mieszkania na sprzedaż, lokale usługowe na parterze oraz wygodne garaże podziemne. Każde mieszkanie będzie standardowo wyposażone w inteligentny system Smart House, zapewniający komfort, wygodę i realne oszczędności – bez dodatkowych kosztów dla mieszkańców.

Do lokali będą przynależeć przestronne balkony,...
Pokaż więcej
Podstawowe informacje
Stan nieruchomości:
Rok budowy:
2026
Podłoga:
0
Liczba pięter:
6
Winda:
Nie
Stan elewacji:
Nie określono
Stan budynku wewnątrz:
Stan oświetlenia:
Nie określono
Parking:
Nie
Balkon:
Tak
Podłoga:
Nie określono
Strony świata:
Nie określono
Ogrzewanie:
Miejskie
Certyfikat energetyczny:
Nie określono
Udogodnienia
Monitoring