.
Monika Jaworska
Agent
Zapytaj o ofertę
Zadzwoń do Agenta
Zapytaj o ofertę
Skontaktuj się z Agentem Metrohosue i umów się na prezentację
Wybierz preferowaną datę
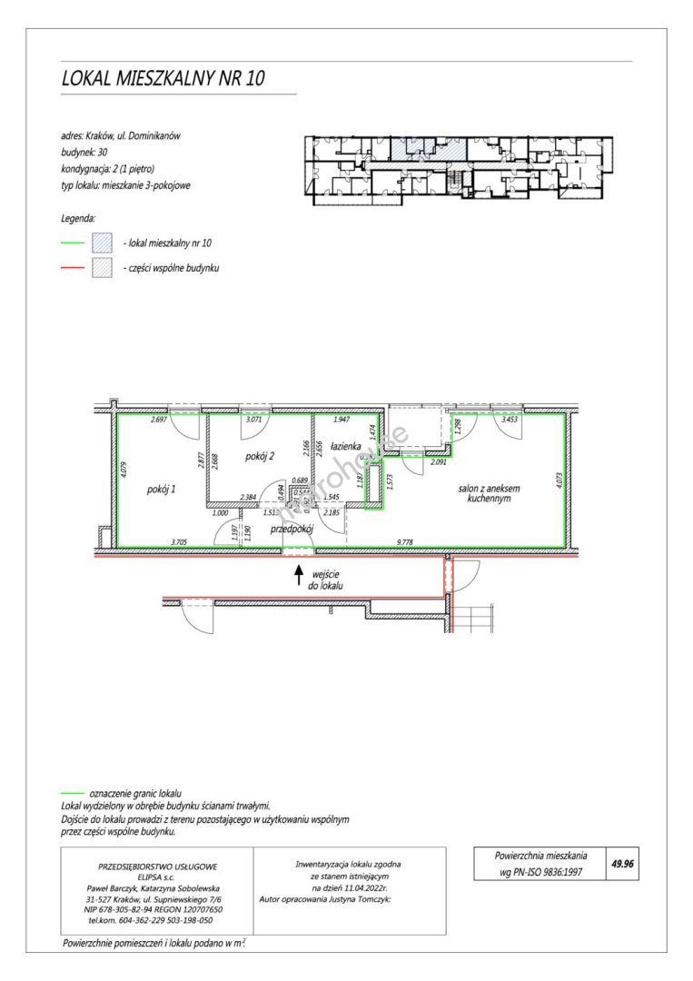
Sprzedaż Mieszkanie Prądnik Czerwony, Kraków
PR019395/LK/10875
Sprzedaż
Mieszkanie
Rynek pierwotny
746 902 PLN 746 902 za m2
Prądnik Czerwony, Kraków
3 pokoje
50 m²
1/0
Zapłacisz PLN/miesięcznej raty kredytu
Oprocentowanie %
O nieruchomości

Inwestycja położona w pobliżu parku.Zieleń parkowa, alejki, plac zabaw i inne atrakcje sprawiają, że okoliczni mieszkańcy mogą tu odpoczywać i spędzać czas w sposób aktywny. Ciekawa architektura i szeroka gama mieszkań, a jednocześnie kameralność to cechy wyróżniające inwestycję "Park Zaczarowanej Dorożki". W budynku położonym zaprojektowano 33 mieszkania o powierzchni od 30,34 do 103,41 mkw. Do dyspozycji nabywców mieszkań pozostaje także...
Pokaż więcej
Podstawowe informacje
Stan nieruchomości:
Rok budowy:
2022
Podłoga:
1
Liczba pięter:
0
Winda:
Nie
Stan elewacji:
Nie określono
Stan budynku wewnątrz:
Stan oświetlenia:
Nie określono
Parking:
Nie
Balkon:
Nie
Podłoga:
Nie określono
Strony świata:
Nie określono
Ogrzewanie:
Miejskie
Certyfikat energetyczny:
Nie określono
Udogodnienia
Obszar zamknięty