.
Bartosz Baer
Kierownik
Zapytaj o ofertę
Zadzwoń do Agenta
Zapytaj o ofertę
Skontaktuj się z Agentem Metrohosue i umów się na prezentację
Wybierz preferowaną datę
Sprzedaż Mieszkanie Włochy, Warszawa
PR043778/LK/40024
Sprzedaż
Mieszkanie
Rynek pierwotny
553 200 PLN 553 200 za m2
Włochy, Warszawa
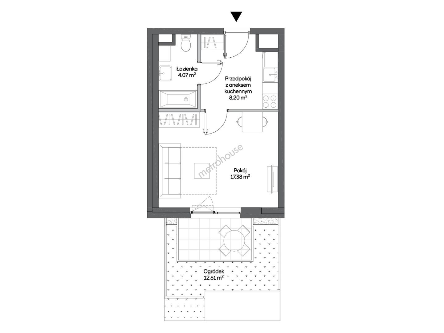
1 pokój
30 m²
0/8
Zapłacisz PLN/miesięcznej raty kredytu
Oprocentowanie %
O nieruchomości
Zlokalizowane na warszawskim Rakowie osiedle, swoją nazwą nawiązuje do szwedzkiego słowa symbolizującego ciszę i harmonię. Te nowe mieszkania na warszawskich Włochach to inwestycja, która obejmuje dwa starannie zaprojektowane budynki, trzy- i siedmiopiętrowy, oraz wewnętrzne patio. Przestrzeń wspólna została zaprojektowana w taki sposób, by sprzyjać integracji. Dziedziniec, z jednej strony osłonięty przez starodrzew, przemyślany jest w taki...
Pokaż więcej
Podstawowe informacje
Stan nieruchomości:
Rok budowy:
2025
Podłoga:
0
Liczba pięter:
8
Winda:
Nie
Stan elewacji:
Nie określono
Stan budynku wewnątrz:
Stan oświetlenia:
Nie określono
Parking:
Nie
Balkon:
Nie
Podłoga:
Nie określono
Strony świata:
Nie określono
Ogrzewanie:
Miejskie
Certyfikat energetyczny:
Nie określono
Udogodnienia
Alarm