.
Bartosz Baer
Doradca
Zapytaj o ofertę
Zadzwoń do Agenta
Zapytaj o ofertę
Skontaktuj się z Agentem Metrohosue i umów się na prezentację
Wybierz preferowaną datę
Sprzedaż Mieszkanie Bemowo, Warszawa
PR048938/LK/44094
Sprzedaż
Mieszkanie
Rynek pierwotny
2 020 224 PLN 2 020 224 za m2
Bemowo, Warszawa
4 pokoje
100 m²
3/3
Zapłacisz PLN/miesięcznej raty kredytu
Oprocentowanie %
O nieruchomości
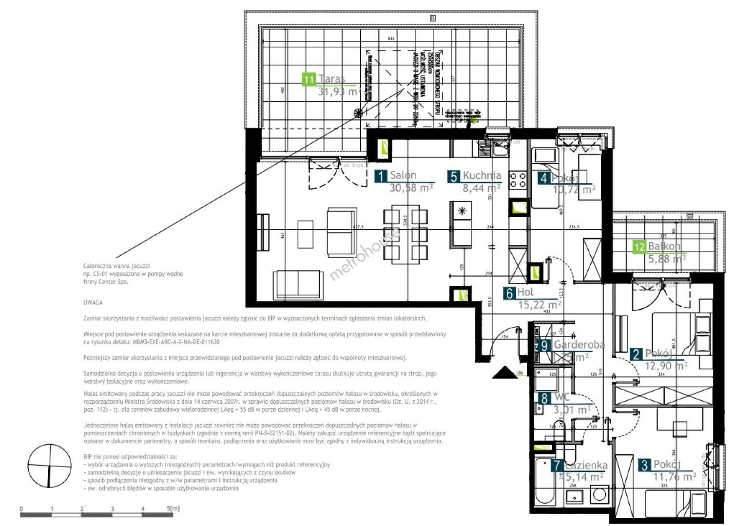
Nowoczesne osiedle mieszkaniowe zlokalizowane w warszawskiej dzielnicy Bemowo. Inwestycja obejmuje budowę 59 mieszkań o powierzchni od 35 do 100 m², dostępnych w układach 2-, 3- i 4-pokojowych. Budynek wyróżnia się stylową architekturą i wysokim standardem wykończenia. Mieszkania wyposażone są w przestronne balkony, loggie lub tarasy, zapewniając dodatkową przestrzeń do wypoczynku. Na terenie osiedla przewidziano...
Pokaż więcej
Podstawowe informacje
Stan nieruchomości:
Rok budowy:
2027
Podłoga:
3
Liczba pięter:
3
Winda:
Nie
Stan elewacji:
Nie określono
Stan budynku wewnątrz:
Stan oświetlenia:
Nie określono
Parking:
Nie
Balkon:
Tak
Podłoga:
Nie określono
Strony świata:
Nie określono
Ogrzewanie:
Miejskie
Certyfikat energetyczny:
Nie określono