.
Bartosz Baer
Kierownik
Zapytaj o ofertę
Zadzwoń do Agenta
Zapytaj o ofertę
Skontaktuj się z Agentem Metrohosue i umów się na prezentację
Wybierz preferowaną datę
Sprzedaż Mieszkanie Bemowo, Warszawa
PR050487/LK/40441
Sprzedaż
Mieszkanie
Rynek pierwotny
979 482 PLN 979 482 za m2
Bemowo, Warszawa
3 pokoje
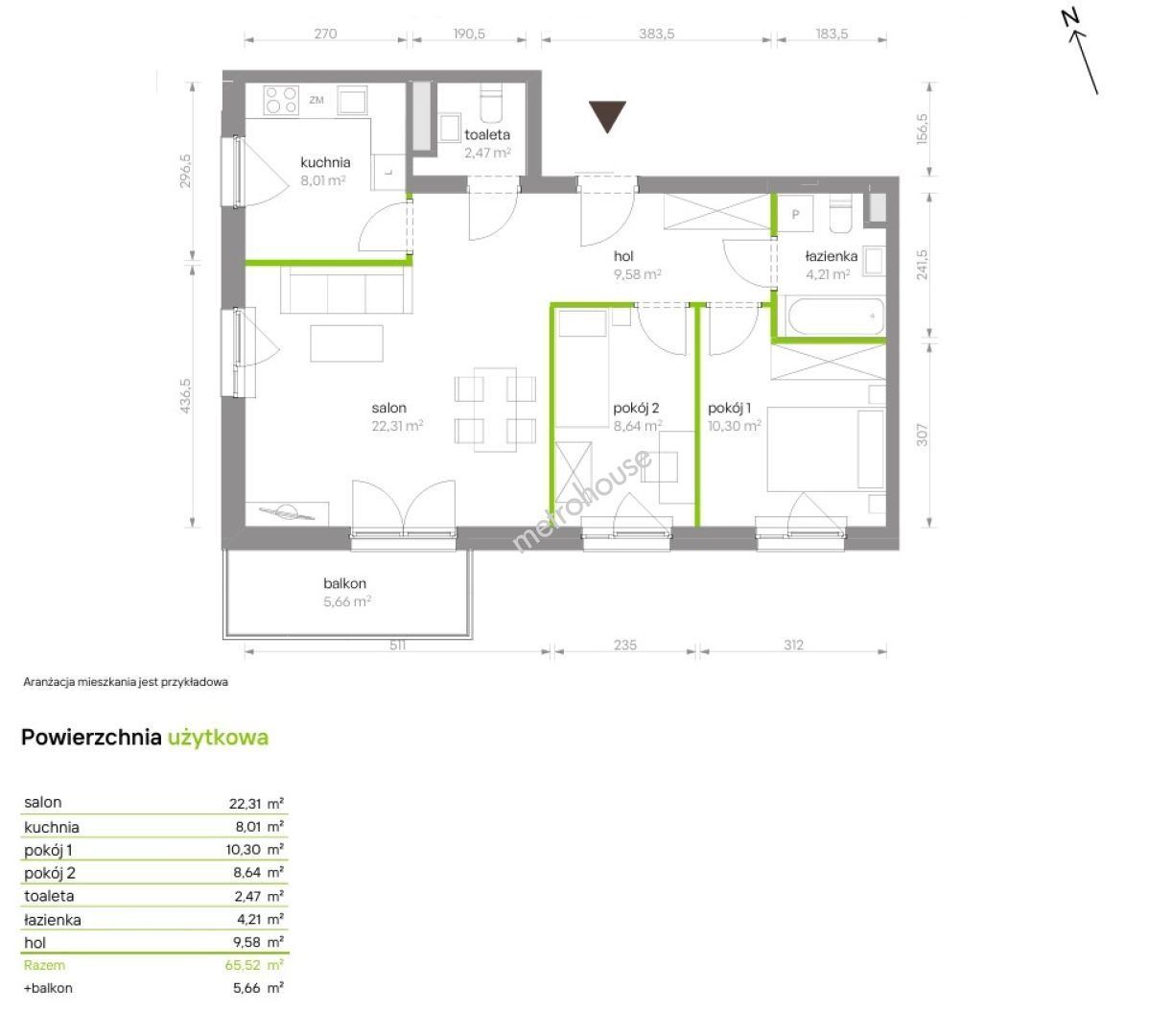
66 m²
1/4
Zapłacisz PLN/miesięcznej raty kredytu
Oprocentowanie %
O nieruchomości
Osiedle realizowane tuż obok budowanej stacji II linii metra – Chrzanów od początku cieszyło się dużym zainteresowaniem wśród klientów.  Każdy z budynków w projekcie nawiązuje nazwą oraz stylem do europejskich metropolii, zachęcając mieszkańców do odkrywania sąsiedztwa. W ramach budynku Amsterdam, który powstanie w III etapie osiedla, do przedsprzedaży trafiło 116 komfortowych i funkcjonalnych mieszkań o metrażach od 27 do 84 mkw. z ogródkami,...
Pokaż więcej
Podstawowe informacje
Stan nieruchomości:
Rok budowy:
2027
Podłoga:
1
Liczba pięter:
4
Winda:
Nie
Stan elewacji:
Nie określono
Stan budynku wewnątrz:
Stan oświetlenia:
Nie określono
Parking:
Nie
Balkon:
Nie
Podłoga:
Nie określono
Strony świata:
Nie określono
Ogrzewanie:
Miejskie
Certyfikat energetyczny:
Nie określono
Udogodnienia
Monitoring