.
Monika Jaworska
Agent
Zapytaj o ofertę
Zadzwoń do Agenta
Zapytaj o ofertę
Skontaktuj się z Agentem Metrohosue i umów się na prezentację
Wybierz preferowaną datę
Sprzedaż Mieszkanie Gdynia
PR052618/LK/39486
Sprzedaż
Mieszkanie
Rynek pierwotny
511 678 PLN 511 678 za m2
Gdynia
2 pokoje
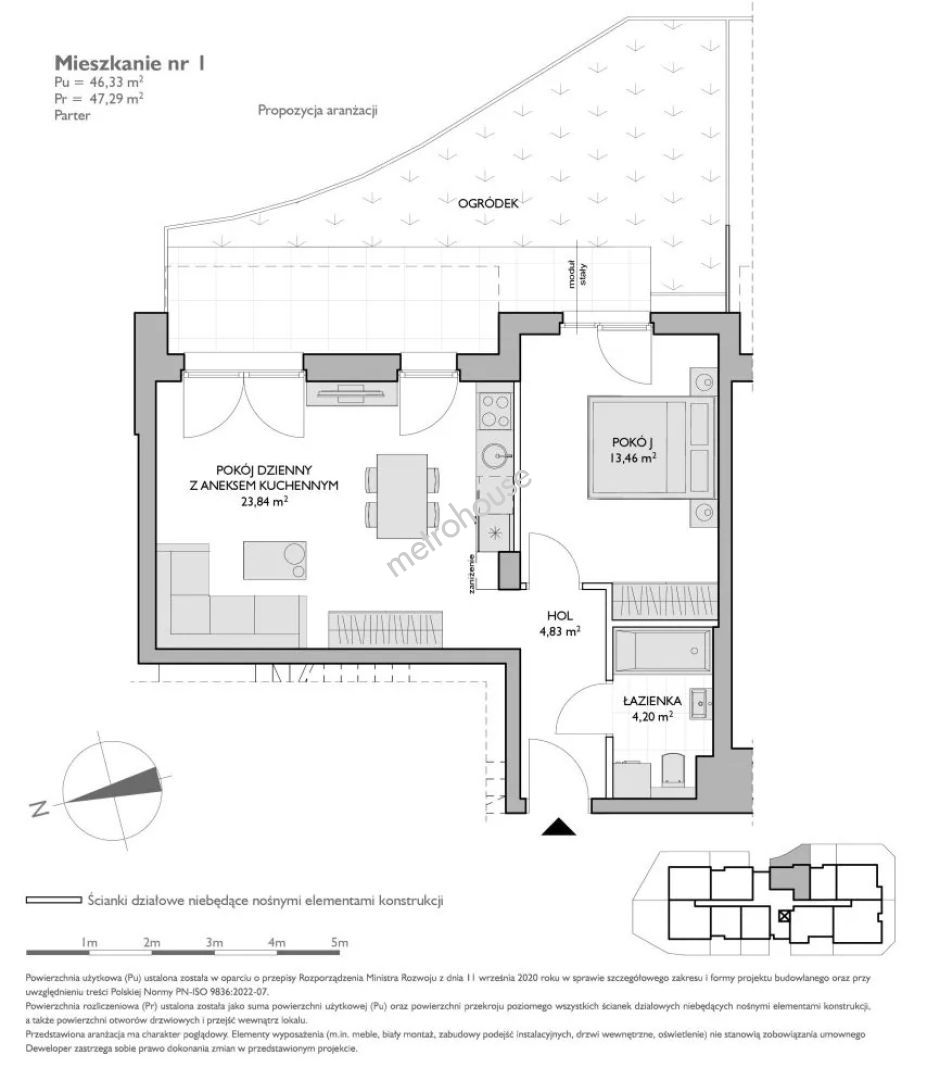
47 m²
0/3
Zapłacisz PLN/miesięcznej raty kredytu
Oprocentowanie %
O nieruchomości
Zabudowę mieszkaniową tworzyć będą kameralne, 3-piętrowe budynki mieszkalne z halami garażowymi, windami i lokalami handlowo-usługowymi. Osiedle obejmie również budynek o funkcji sportowej (centrum wspinaczkowe), pawilon handlowy oraz niewielki biurowiec. Całość spajać będzie nowoczesna architektura z wyrazistymi bryłami budynków i elewacjami wykonanymi z wysokiej jakości materiałów. Każde mieszkanie posiadać będzie swój ogródek, balkon lub...
Pokaż więcej
Podstawowe informacje
Stan nieruchomości:
Rok budowy:
2027
Podłoga:
0
Liczba pięter:
3
Winda:
Nie
Stan elewacji:
Nie określono
Stan budynku wewnątrz:
Stan oświetlenia:
Nie określono
Parking:
Nie
Balkon:
Nie
Podłoga:
Nie określono
Strony świata:
Nie określono
Ogrzewanie:
Miejskie
Certyfikat energetyczny:
Nie określono