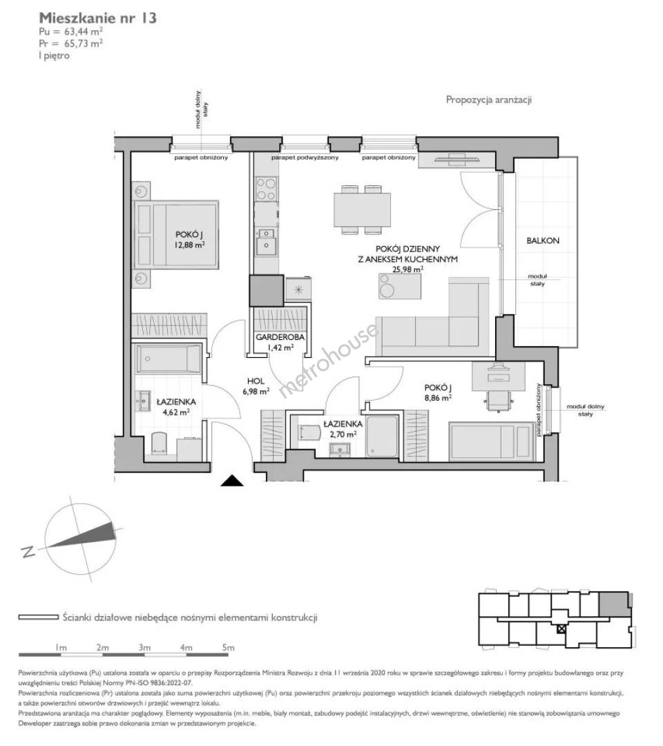
Zabudowę mieszkaniową tworzyć będą kameralne, 3-piętrowe budynki mieszkalne z halami garażowymi, windami i lokalami handlowo-usługowymi. Osiedle obejmie również budynek o funkcji sportowej (centrum wspinaczkowe), pawilon handlowy oraz niewielki biurowiec. Całość spajać będzie nowoczesna architektura z wyrazistymi bryłami budynków i elewacjami wykonanymi z wysokiej jakości materiałów. Każde mieszkanie posiadać będzie swój ogródek, balkon lub...