.
Bartosz Baer
Kierownik
Zapytaj o ofertę
Zadzwoń do Agenta
Zapytaj o ofertę
Skontaktuj się z Agentem Metrohosue i umów się na prezentację
Wybierz preferowaną datę
Sprzedaż Mieszkanie Praga Południe, Warszawa
PR072944/LK/28375
Sprzedaż
Mieszkanie
Rynek pierwotny
756 721 PLN 756 721 za m2
Praga Południe, Warszawa
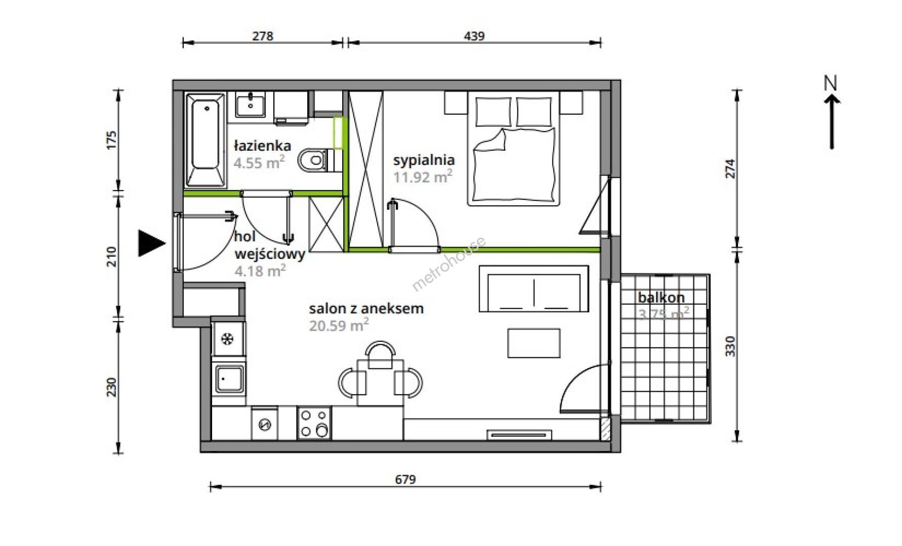
2 pokoje
41 m²
2/4
Zapłacisz PLN/miesięcznej raty kredytu
Oprocentowanie %
O nieruchomości
Inwestycja realizowania jest w jednej z najdynamiczniej rozwijających się części Pragi Południe, niespełna 500 m od planowanej stacji metra Mińska. Projekt podzielony na kilka etapów, zakłada budowę 1572 mieszkań, w niskich, 4-piętrowych budynkach. Osiedle powstają w myśl zasad zrównoważonego rozwoju i z zastosowaniem rozwiązań ograniczających wpływ na środowisko naturalne. Pomiędzy poszczególnymi etapami inwestycji zaplanowano rozległe, otwarte...
Pokaż więcej
Podstawowe informacje
Stan nieruchomości:
Rok budowy:
2025
Podłoga:
2
Liczba pięter:
4
Winda:
Nie
Stan elewacji:
Nie określono
Stan budynku wewnątrz:
Stan oświetlenia:
Nie określono
Parking:
Nie
Balkon:
Nie
Podłoga:
Nie określono
Strony świata:
Nie określono
Ogrzewanie:
Miejskie
Certyfikat energetyczny:
Nie określono