.
Bartosz Baer
Doradca
Zapytaj o ofertę
Zadzwoń do Agenta
Zapytaj o ofertę
Skontaktuj się z Agentem Metrohosue i umów się na prezentację
Wybierz preferowaną datę
Sprzedaż Mieszkanie Praga Południe, Warszawa
PR072944/LK/28383
Sprzedaż
Mieszkanie
Rynek pierwotny
571 525 PLN 571 525 za m2
Praga Południe, Warszawa
1 pokój
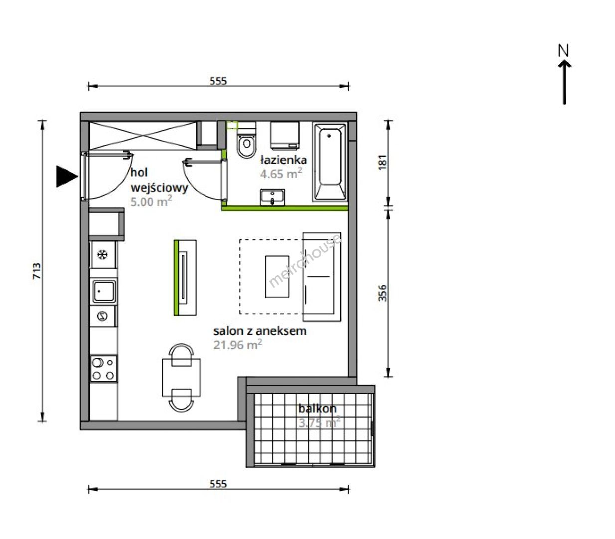
31 m²
2/4
Zapłacisz PLN/miesięcznej raty kredytu
Oprocentowanie %
O nieruchomości
Nowoczesne osiedle mieszkaniowe realizowane w dynamicznie rozwijającej się dzielnicy Praga-Południe. Osiedle wyróżnia się atrakcyjnym zagospodarowaniem terenu, z przestronnymi dziedzińcami, alejkami spacerowymi oraz placem zabaw. Każde mieszkanie posiada balkon, taras lub ogródek, co zapewnia dodatkową przestrzeń do wypoczynku. Inwestycja realizowana jest z zastosowaniem proekologicznych rozwiązań, co potwierdza...
Pokaż więcej
Podstawowe informacje
Stan nieruchomości:
Rok budowy:
2025
Podłoga:
2
Liczba pięter:
4
Winda:
Nie
Stan elewacji:
Nie określono
Stan budynku wewnątrz:
Stan oświetlenia:
Nie określono
Parking:
Nie
Balkon:
Tak
Podłoga:
Nie określono
Strony świata:
Nie określono
Ogrzewanie:
Miejskie
Certyfikat energetyczny:
Nie określono