.
Joanna Cymer
Ekspert
Zapytaj o ofertę
Zadzwoń do Agenta
Zapytaj o ofertę
Skontaktuj się z Agentem Metrohosue i umów się na prezentację
Wybierz preferowaną datę
SDCUNE811
Sprzedaż
Pół bliźniaka
Tylko u nas
699 000 PLN 5 924 za m2
Ogińskiego, Reda, pow. wejherowski
4 pokoje
118 m²
60 m² działka
Zapłacisz PLN/miesięcznej raty kredytu
Oprocentowanie %
O nieruchomości
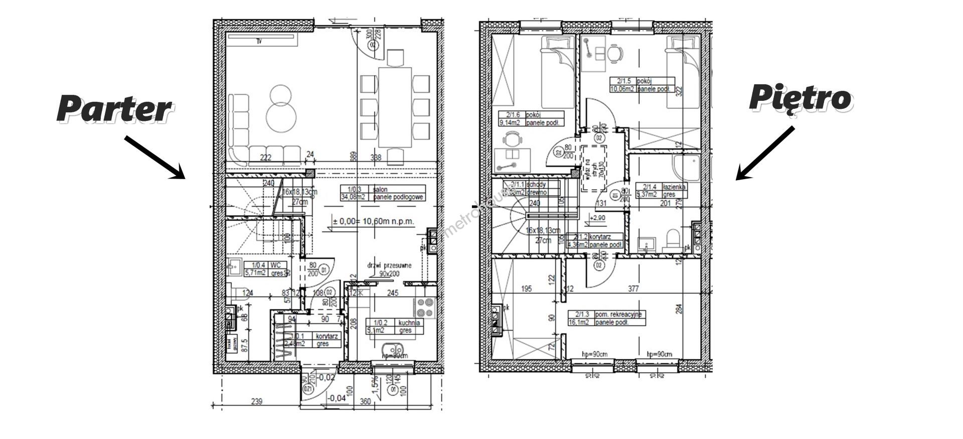
Na sprzedaż 4 przestronne lokale mieszkalne z ogrodem w stanie deweloperskim o powierzchni całkowitej ok 118 mkw, znajdujące się w nowoczesnym budynku w zabudowie bliźniaczej w Redzie.
Na parterze znajduje się: przestronny pokój dzienny z wyjściem na taras 34,08 mkw, kuchnia 5,1 mkw, WC 5,71 mkw, korytarz 2,48 mkw.
Na pierwszym piętrze znajdują się: 3 sypialnie w tym 1 z garderobą( 16 mkw, 10 mkw, 9,14...
Pokaż więcej
Podstawowe informacje
Stan nieruchomości:
Nie określono
Rok budowy:
2025
Liczba pięter:
2
Stan elewacji:
4 - Do zamieszkania
Stan budynku wewnątrz:
Deweloperski
Stan oświetlenia:
Bardzo słoneczne
Podłoga:
Ogród
Ogrzewanie:
Gaz miejski
Materiał:
Silikat
Certyfikat energetyczny:
Nie określono
Parking:
Nie
Udogodnienia
Blisko centrum
Blisko lasu
Blisko morza
Bliskość transportu publicznego
Brak barier architektonicznych
Dobra komunikacja
Dobry rozkład
Ogólnodostępne miejsca parkingowe
Z ogrodem