.
Tomasz Stępień
Kierownik
Zapytaj o ofertę
Zadzwoń do Agenta
Zapytaj o ofertę
Skontaktuj się z Agentem Metrohosue i umów się na prezentację
Wybierz preferowaną datę
Sprzedaż Dom Słowikowskiego, Raszyn, pow. pruszkowski
SDRALA333
Sprzedaż
Bliźniak
Tylko u nas
1 398 000 PLN 8 903 za m2
Słowikowskiego, Raszyn, pow. pruszkowski
5 pokoi
157 m²
500 m² działka
Zapłacisz PLN/miesięcznej raty kredytu
Oprocentowanie %
O nieruchomości
Nowoczesny, energooszczędny dom w zabudowie bliźniaczej – Raszyn
Marzysz o nowoczesnym domu blisko natury, a jednocześnie z doskonałym dostępem do miejskiej infrastruktury? To oferta idealna dla Ciebie i Twojej rodziny!
Na sprzedaż:
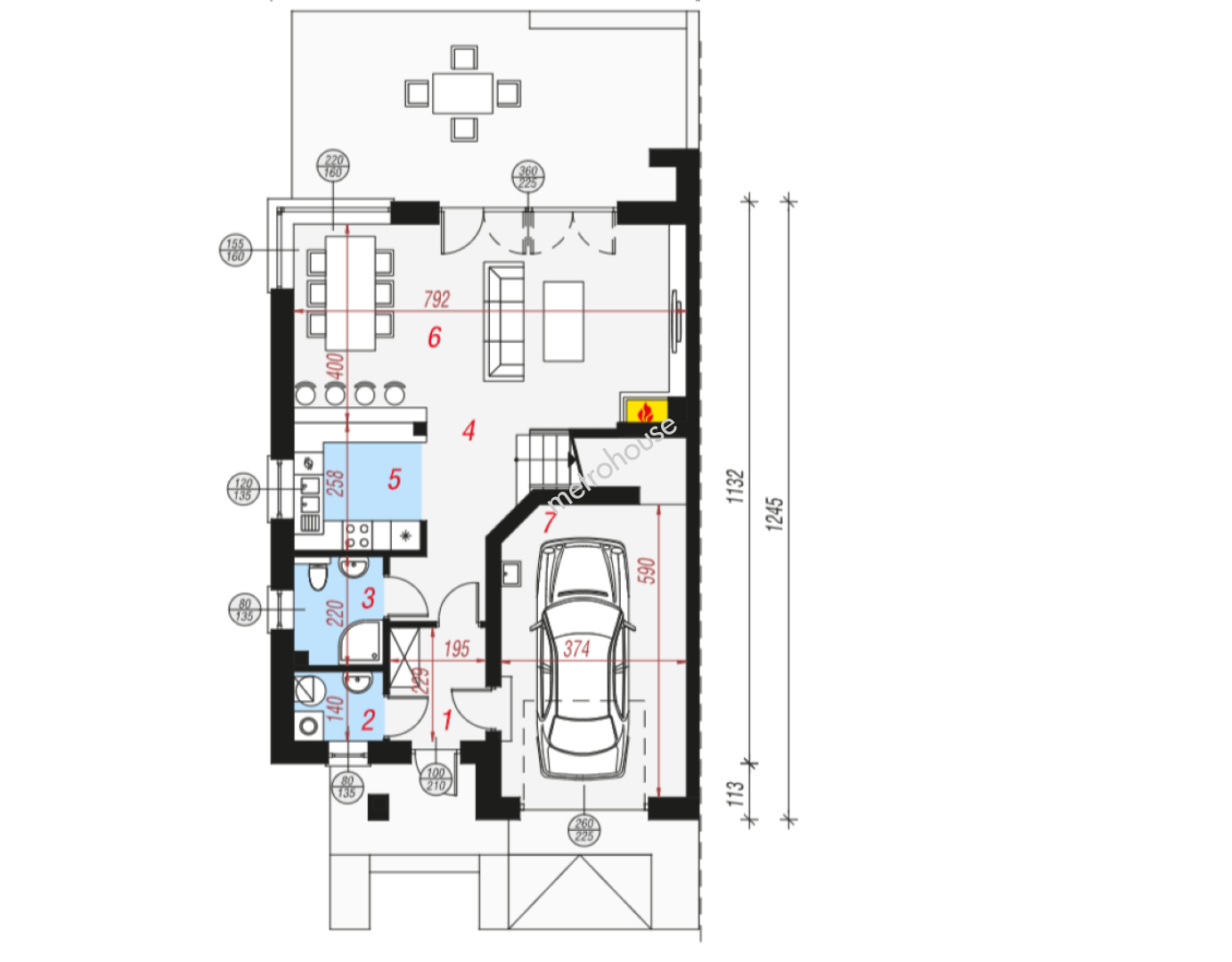
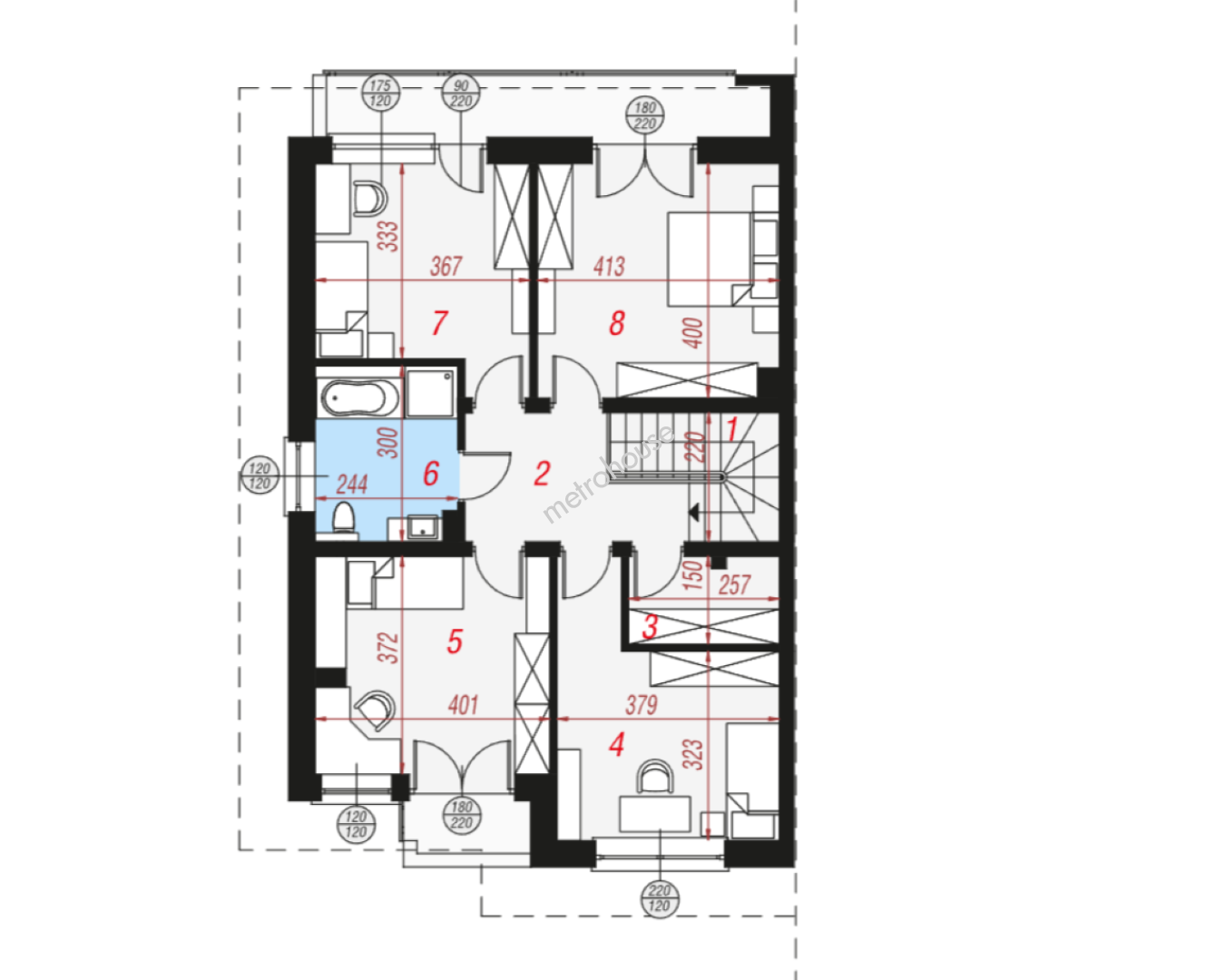
Nowoczesny dom w zabudowie bliźniaczej o powierzchni 157,03 m², usytuowany na działce 500 m². Stan deweloperski pozwala na pełną personalizację...
Pokaż więcej
Podstawowe informacje
Stan nieruchomości:
Nie określono
Rok budowy:
2024
Liczba pięter:
2
Stan elewacji:
6 - Podwyższony
Stan budynku wewnątrz:
Deweloperski
Stan oświetlenia:
Słoneczne
Podłoga:
Ogród
Ogrzewanie:
Pompa ciepła
Materiał:
Pustak ceramiczny
Certyfikat energetyczny:
Nie określono
Parking:
Nie
Udogodnienia
Blisko centrum
Blisko parku
Blisko szkoły
Bliskość obiektów rekreacyjnych
Bliskość transportu publicznego
Brak barier architektonicznych
Dobra inwestycja
Dobra komunikacja
Dobry rozkład
Piękny widok
Światłowód
Z ogrodem
Alarm
Drzwi antywłamaniowe
Monitoring
Apteka
Bank
Basen
Szkoła
Szpital