.
Tomasz Niejadlik
Master lider
Zapytaj o ofertę
Zadzwoń do Agenta
Zapytaj o ofertę
Skontaktuj się z Agentem Metrohosue i umów się na prezentację
Wybierz preferowaną datę
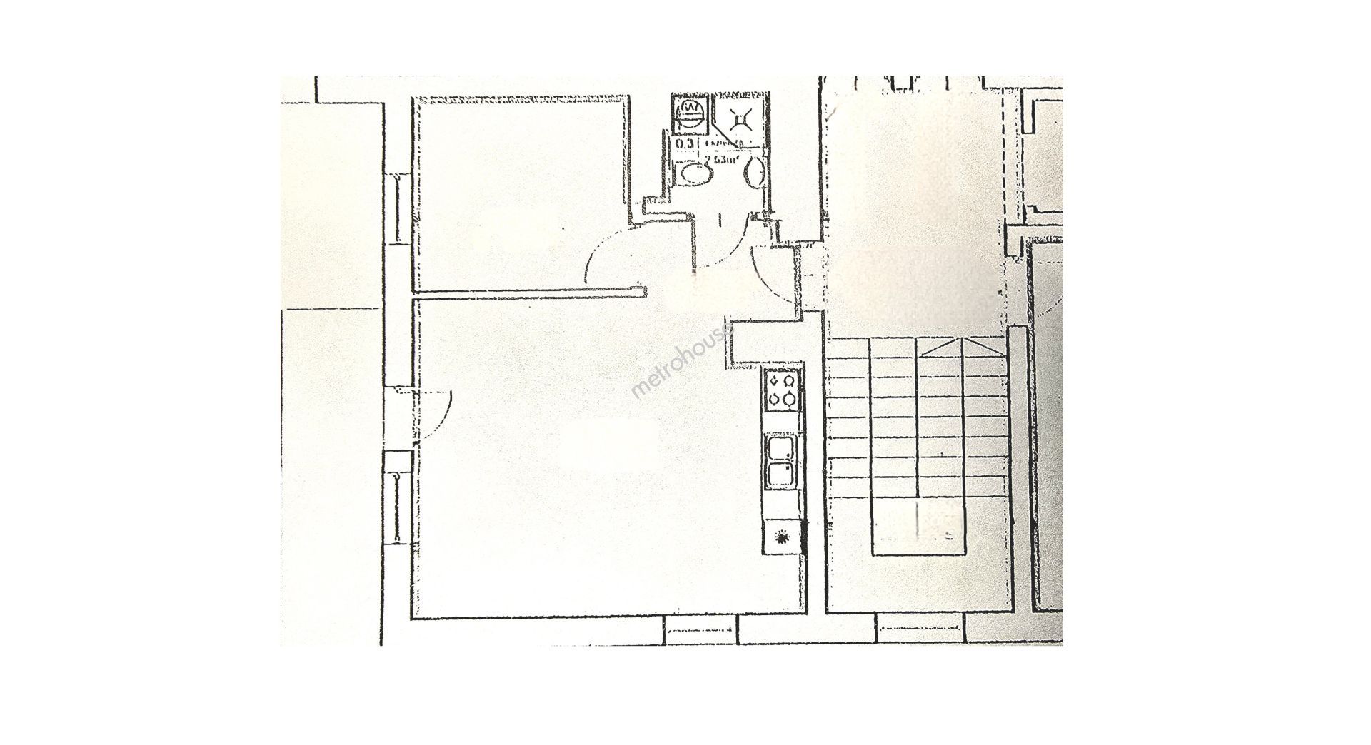
Sprzedaż Mieszkanie Wielicka, Podgórze, Kraków
SMFEDO176
Sprzedaż
Mieszkanie
Obniżka ceny
Tylko u nas
620 000 PLN 16 926 za m2
Wielicka, Podgórze, Kraków
2 pokoje
37 m²
4/4
Zapłacisz PLN/miesięcznej raty kredytu
Oprocentowanie %
O nieruchomości
Przedstawiam do zakupu mieszkanie położone w nowej, kameralnej inwestycji (blok z 2016 roku) przy ul. Wielickiej 253b. Lokal składa się z dwóch osobnych pokoi, w tym jednego z balkonem, osobnej kuchni, przedpokoju oraz łazienki z WC. Mieszkanie nadaje się do zamieszkania, nie wymaga remontów. Posiada pełną zabudowę meblową wykonaną na wymiar oraz wszystkie niezbędne sprzęty AGD, w tym pralkę, kuchenkę, lodówkę....
Pokaż więcej
Podstawowe informacje
Stan nieruchomości:
Do zamieszkania
Rok budowy:
2016
Podłoga:
4
Liczba pięter:
4
Winda:
Tak
Stan elewacji:
4 - Do zamieszkania
Stan budynku wewnątrz:
Do zamieszkania
Stan oświetlenia:
Słoneczne
Parking:
Nie
Balkon:
Tak
Podłoga:
Inne budynki
Strony świata:
ÉK
Ogrzewanie:
Gaz miejski
Certyfikat energetyczny:
Nie określono
Udogodnienia
Blisko centrum
Blisko parku
Bliskość obiektów rekreacyjnych
Bliskość transportu publicznego
Dobra komunikacja
Dobry rozkład
Ogólnodostępne miejsca parkingowe
Domofon
Apteka
Bank
Basen
Szkoła
Szpital