.
Kamil Zieliński
Agent
Zapytaj o ofertę
Zadzwoń do Agenta
Zapytaj o ofertę
Skontaktuj się z Agentem Metrohosue i umów się na prezentację
Wybierz preferowaną datę
Sprzedaż Mieszkanie Nowogrodzka, Śródmieście, Warszawa
SMLUFI618
Sprzedaż
Mieszkanie
Obniżka ceny
1 090 000 PLN 24 115 za m2
Nowogrodzka, Śródmieście, Warszawa
2 pokoje
45 m²
1/7
Zapłacisz PLN/miesięcznej raty kredytu
Oprocentowanie %
O nieruchomości
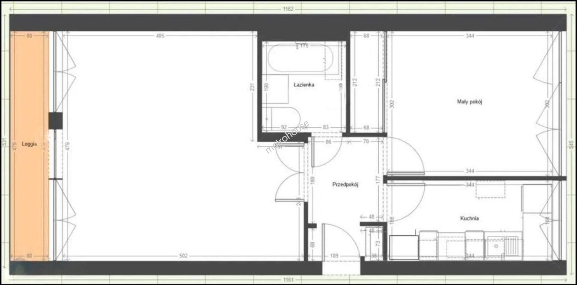
Nowoczesny apartament 47,55 m² w samym sercu Warszawy ul. Nowogrodzka 74 Balkon Piwnica Klimatyzacja Idealny pod inwestycję

Na sprzedaż nowoczesny, w pełni umeblowany apartament o powierzchni 47,55 m², zlokalizowany przy ul. Nowogrodzkiej 74 w samym centrum Warszawy. Mieszkanie znajduje się na 1. piętrze zadbanego budynku z windą, a jego dodatkowym atutem jest...
Pokaż więcej
Podstawowe informacje
Stan nieruchomości:
Podwyższony
Rok budowy:
1965
Podłoga:
1
Liczba pięter:
7
Winda:
Nie
Stan elewacji:
4 - Do zamieszkania
Stan budynku wewnątrz:
Do zamieszkania
Stan oświetlenia:
Słoneczne
Parking:
Nie
Balkon:
Tak
Podłoga:
Ulice
Strony świata:
D
Ogrzewanie:
Miejskie
Certyfikat energetyczny:
Nie określono
Udogodnienia
Blisko centrum
Blisko parku
Blisko szkoły
Bliskość obiektów rekreacyjnych
Bliskość transportu publicznego
Dobra inwestycja
Dobra komunikacja
Dobry rozkład
Klimatyzacja
Luksusowa nieruchomość
Ogólnodostępne miejsca parkingowe
Pełne umeblowane
Pełne wyposażenie
Po remoncie
Światłowód
Ze sprzętem AGD
Domofon
Drzwi antywłamaniowe
Apteka
Bank
Basen
Szkoła
Szpital