.
Danuta Lewandowska
Master lider
Zapytaj o ofertę
Zadzwoń do Agenta
Zapytaj o ofertę
Skontaktuj się z Agentem Metrohosue i umów się na prezentację
Wybierz preferowaną datę
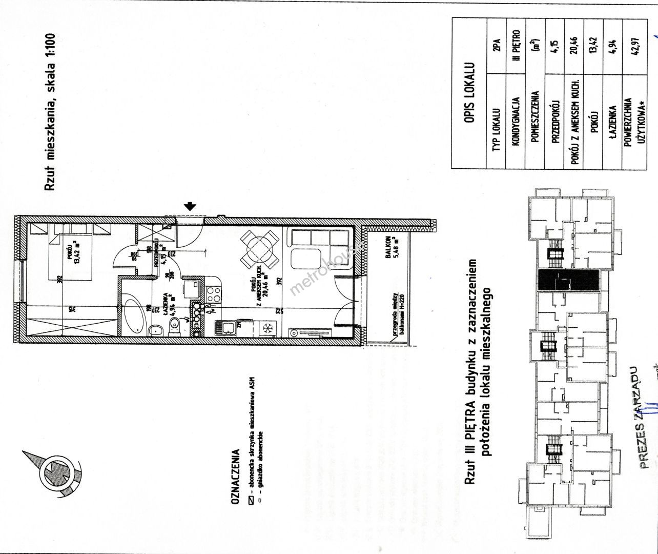
Sprzedaż Mieszkanie Świerkowa, Iława
SMMAMY464
Sprzedaż
Mieszkanie
449 000 PLN 10 449 za m2
Świerkowa, Iława
2 pokoje
43 m²
3/31
Zapłacisz PLN/miesięcznej raty kredytu
Oprocentowanie %
O nieruchomości
Iława to niezwykłe miejsce do życia. Dzięki swojej lokalizacji oferuje doskonałe połączenie z naturą oraz wygodę miejskiego życia. W okolicy znajdują się liczne tereny zielone, idealne na spacery czy wypoczynek na łonie natury. Ponadto, Iława jest dynamicznie rozwijającym się miastem, oferującym dostęp do wszelkich potrzebnych usług i rozrywek. Zdecydowanie warto rozważyć zakup mieszkania właśnie tutaj, zarówno...
Pokaż więcej
Podstawowe informacje
Stan nieruchomości:
Wysoki standard
Rok budowy:
2025
Podłoga:
3
Liczba pięter:
31
Winda:
Tak
Stan elewacji:
8- Wysoki standard
Stan budynku wewnątrz:
Wysoki standard
Stan oświetlenia:
Słoneczne
Parking:
Nie
Balkon:
Tak
Podłoga:
Jezioro/staw
Strony świata:
DK
Ogrzewanie:
Gaz miejski
Certyfikat energetyczny:
Nie określono
Udogodnienia
Blisko jeziora
Dobra komunikacja
Dobry rozkład
Miejscowość atrakcyjna turystycznie
Ogólnodostępne miejsca parkingowe
Piękny widok
Z ogrodem