.
Michał Trybiński
Master lider
Zapytaj o ofertę
Zadzwoń do Agenta
Zapytaj o ofertę
Skontaktuj się z Agentem Metrohosue i umów się na prezentację
Wybierz preferowaną datę
Sprzedaż Mieszkanie Grunwaldzka, Ustka, pow. słupski
SMPUVU182
Sprzedaż
Mieszkanie
Tylko u nas
720 000 PLN 8 790 za m2
Grunwaldzka, Ustka, pow. słupski
4 pokoje
82 m²
3/3
Zapłacisz PLN/miesięcznej raty kredytu
Oprocentowanie %
O nieruchomości
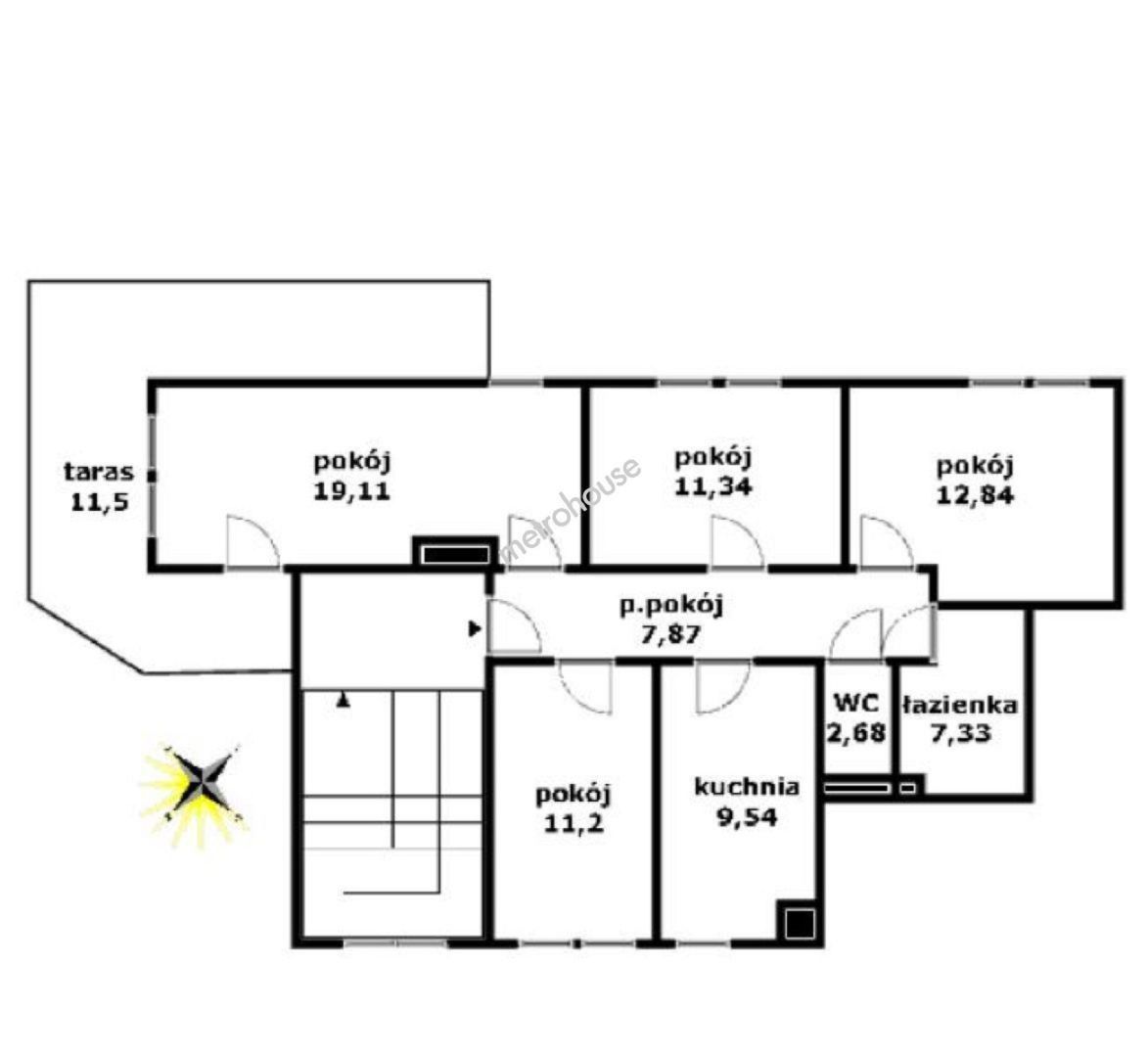
Mieszkanie spółdzielcze własnościowe o powierzchni 81,91 m2 znajdujące się na III piętrze w Ustce.
W skład nieruchomości wchodzą 4 pokoje, zamknięta kuchnia z oknem, przedpokój, łazienka, WC.
Do mieszkania przynależy piwnica i duży taras.
Ogrzewanie i ciepła woda z sieci miejskiej.
Pod blokiem znajdziemy miejsca parkingowe...
Pokaż więcej
Podstawowe informacje
Stan nieruchomości:
Do zamieszkania
Rok budowy:
1993
Podłoga:
3
Liczba pięter:
3
Winda:
Nie
Stan elewacji:
4 - Do zamieszkania
Stan budynku wewnątrz:
Do zamieszkania
Stan oświetlenia:
Słoneczne
Parking:
Nie
Balkon:
Tak
Podłoga:
Podwórko
Strony świata:
DK
Ogrzewanie:
Miejskie
Certyfikat energetyczny:
Nie określono
Udogodnienia
Blisko centrum
Blisko morza
Blisko szkoły
Bliskość obiektów rekreacyjnych
Dobra inwestycja
Miejscowość atrakcyjna turystycznie
Ogólnodostępne miejsca parkingowe