.
Marek Celuch
Lider
Zapytaj o ofertę
Zadzwoń do Agenta
Zapytaj o ofertę
Skontaktuj się z Agentem Metrohosue i umów się na prezentację
Wybierz preferowaną datę
Sprzedaż Mieszkanie Mickiewicza, Elbląg
SMSIJO123
Sprzedaż
Mieszkanie
Obniżka ceny
Tylko u nas
460 000 PLN 5 750 za m2
Mickiewicza, Elbląg
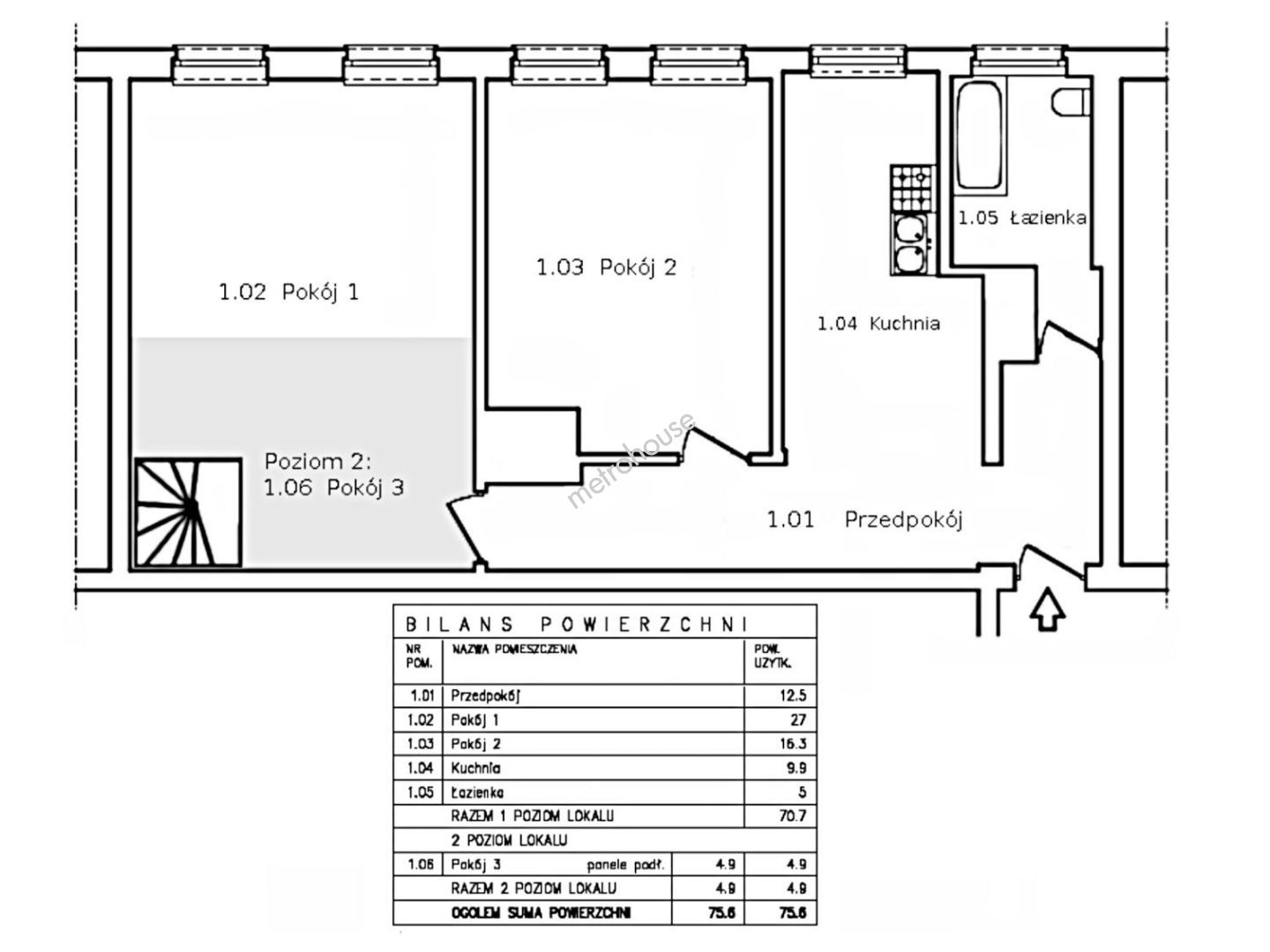
3 pokoje
80 m²
3/3
Zapłacisz PLN/miesięcznej raty kredytu
Oprocentowanie %
O nieruchomości
Zabudowa kuchni i zabudowa salonu w cenie.
To wyjątkowa oferta dla osób, które cenią sobie komfort, przestrzeń i bliskość natury, nie rezygnując przy tym z zalet mieszkania w mieście. Nie czekaj, umów się na pokazanie i zobacz to wyjątkowe mieszkanie już dziś!
Ogrzewanie miejskie zapewnia mieszkańcom komfort bez...
Pokaż więcej
Podstawowe informacje
Stan nieruchomości:
Do zamieszkania
Rok budowy:
1950
Podłoga:
3
Liczba pięter:
3
Winda:
Nie
Stan elewacji:
4 - Do zamieszkania
Stan budynku wewnątrz:
Do zamieszkania
Stan oświetlenia:
Bardzo słoneczne
Parking:
Nie
Balkon:
Nie
Podłoga:
Inne budynki
Strony świata:
D
Ogrzewanie:
Miejskie
Certyfikat energetyczny:
Nie określono
Udogodnienia
Blisko centrum
Bliskość transportu publicznego
Dobra inwestycja
Dobra komunikacja
Dobry rozkład
Ogólnodostępne miejsca parkingowe
Domofon
Apteka
Bank
Szkoła
Szpital