.
Przemysław Sobczyk
Kierownik
Zapytaj o ofertę
Zadzwoń do Agenta
Zapytaj o ofertę
Skontaktuj się z Agentem Metrohosue i umów się na prezentację
Wybierz preferowaną datę
Sprzedaż Mieszkanie Lasówka, Podgórze, Kraków
SMTUVY607
Sprzedaż
Mieszkanie
790 000 PLN 15 490 za m2
Lasówka, Podgórze, Kraków
3 pokoje
51 m²
4/7
Zapłacisz PLN/miesięcznej raty kredytu
Oprocentowanie %
O nieruchomości
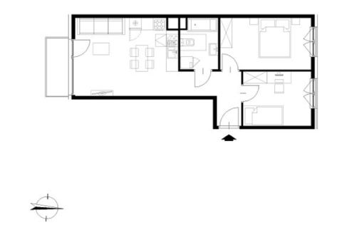
Na sprzedaż 3 pokojowe mieszkanie o metrażu 51m2 w nowej, zielonej i spokojnej okolicy.
Położone na 4 piętrze w 7-kondygnacyjnym nowym budynku z 2024r. z windami. 
Termin oddania 1Q2025.
Sprzedaż na zasadzie cesji.

Na mieszkanie składa się:
Salon z aneksem 20 m2
Pokój 12 m2
Pokój 9 m2
Łazienka 5 m2
Korytarz...
Pokaż więcej
Podstawowe informacje
Stan nieruchomości:
Deweloperski
Rok budowy:
2024
Podłoga:
4
Liczba pięter:
7
Winda:
Tak
Stan elewacji:
5 - Do wprowadzenia
Stan budynku wewnątrz:
Do wprowadzenia
Stan oświetlenia:
Słoneczne
Parking:
Nie
Balkon:
Tak
Podłoga:
Pojedyncze drzewa
Strony świata:
D
Ogrzewanie:
Miejskie
Certyfikat energetyczny:
Nie określono
Udogodnienia
Blisko centrum
Blisko parku
Blisko rzeki
Blisko szkoły
Bliskość obiektów rekreacyjnych
Bliskość transportu publicznego
Dobra inwestycja
Dobra komunikacja
Plac zabaw
Domofon
Drzwi antywłamaniowe
Apteka
Bank
Basen
Szkoła