.
Beata Nowak
Broker
Zapytaj o ofertę
Zadzwoń do Agenta
Zapytaj o ofertę
Skontaktuj się z Agentem Metrohosue i umów się na prezentację
Wybierz preferowaną datę
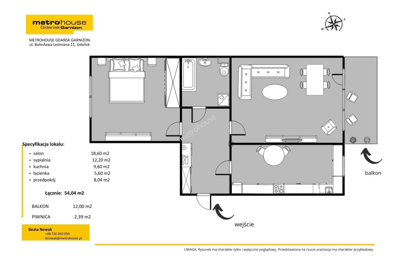
Sprzedaż Mieszkanie Współczesna, Borkowo, pow. gdański
TOWE665
Sprzedaż
Mieszkanie
Obniżka ceny
584 000 PLN 10 807 za m2
Współczesna, Borkowo, pow. gdański
2 pokoje
54 m²
1/3
Zapłacisz PLN/miesięcznej raty kredytu
Oprocentowanie %
O nieruchomości
Jasne, ciepłe, funkcjonalne, ustawne, 2 pokojowe mieszkanie z oddzielną kuchnią. Nieruchomość zlokalizowana w spokojnej okolicy na komfortowym osiedlu 'Nowy Horyzont' w Borkowie graniczącym z Gdańskiem.

Borkowo graniczy z zielonym Południem Gdańska - najmocniej rozwijająca się dzielnica Miasta Gdańsk.

To lokalizacja pozwalająca na codzienną prace i życie w zacisznym centrum miasta.

ATUTY NIERUCHOMOŚCI:

-...
Pokaż więcej
Podstawowe informacje
Stan nieruchomości:
Do wprowadzenia
Rok budowy:
2010
Podłoga:
1
Liczba pięter:
3
Winda:
Tak
Stan elewacji:
Nie określono
Stan budynku wewnątrz:
Do wprowadzenia
Stan oświetlenia:
Nie określono
Parking:
Nie
Balkon:
Tak
Podłoga:
Inne budynki
Strony świata:
DNY
Ogrzewanie:
Miejskie
Certyfikat energetyczny:
Nie określono
Udogodnienia
Dobra komunikacja
Bliskość transportu publicznego
Domofon
Drzwi antywłamaniowe